Lokal na wynajem Wrocław, Stare Miasto, Przedmieście Świdnickie

203.00 m²
53,00 zł/m2
2 piętro
ASO-LW-40872

10 759 zł

Lokal na wynajem
Nowa oferta

Szczegóły oferty

Symbol oferty ASO-LW-40872
Powierzchnia 203,00 m²
Rodzaj budynku BUDYNEK BIUROWY
Opłaty wg liczników prąd
Piętro 2
Stan lokalu dobry
Typ kaucji dwumiesięczna
Okna PCV
Rodzaj lokalu jednopoziomowy
Przeznaczenie lokalu biurowy
Czynsz najmu brutto /m2 65 PLN
Winda tak
Anna Skwarciak

Anna Skwarciak

Agent
Nr licencji: 16519

Napisz wiadomość 923 Ofert

Opis nieruchomości

Prowizje dla biura pokrywa Właściciel nieruchomości.

Kompleks biurowy  usytuowany w Centrum Wrocławia
Biurowiec Klasy b

Parking naziemny
Proponowana powierzchnia 92-300 m2
Współczynnik części wspólnych -10,80%
Dostępność: 1.03.2026r.
 
Czynsz najmu powierzchni biurowej – 53,00 PLN/ 1m2/m-c
Opłata service charge – 22,29 PLN/ 1m² /m-c
Opłata za energię elektryczną
1 miejsce postojowe  287,51 PLN / m-c

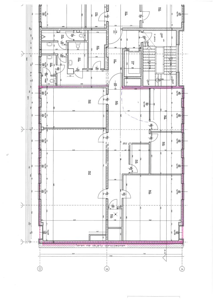
Sugerowana powierzchnia lokal na II p. 203 m2.
Hol, open space + gabinet, pokój zamknięty, 2 salki konferencyjne

 Socjal,  toalety  w częściach wspólnych.

Dostępne lokale:

- 92m2

-203m2
 
Standard:

  • zasilanie elektryczne
  • klimakonwektorowy  system schładzania i ogrzewania  budynku
  • stolarka okienna: aluminium / okna uchylne
  • windy szt. 1
  •  recepcja  6-22:00
  • ściany: korytarze murowane, działowe GK
  • sufity podwieszane systemowe
  • wykładziny dywanowe
  • okablowanie teletechniczne
  • system p.poż.
  • ochrona/monitoring 
 
Anna Skwarciak ASK OFFICE
+48 609 842 932
a.skwarciak@askhome.pl

 

Podobne oferty

Lokal na wynajem

Wrocław, Stare Miasto

134 m2 59,00 zł/m2

Lokal na wynajem

Wrocław, Stare Miasto

190 m2 42,00 zł/m2

Lokal na wynajem

Wrocław, Stare Miasto

197 m2 51,00 zł/m2

Lokal na wynajem

Wrocław, Stare Miasto

196 m2 43,00 zł/m2

Agent

Proszę wprowadzić poprawne imię i nazwisko
Proszę wprowadzić poprawny numer telefonu
Proszę wprowadzić poprawny adres e-mail
Proszę zaznaczyć wymagane zgody
Rozwiąż równanie:
30 2
Niepoprawny wynik