Lokal na wynajem Wrocław, Fabryczna, Pilczyce

2175.00 m²
55,00 zł/m2
1 piętro
ASO-LW-41160

119 625 zł

Lokal na wynajem
Nowa oferta

Szczegóły oferty

Symbol oferty ASO-LW-41160
Powierzchnia 2 175,00 m²
Rodzaj budynku biurowo-usługowy
Opłaty w czynszu administracja, ogrzewanie, Winda
Opłaty wg liczników prąd, woda
Piętro 1
Typ kaucji do uzgodnienia
Okna aluminiowe
Przeznaczenie lokalu biurowy, inny, usługowy
Czynsz najmu netto /m2 55 PLN
Czynsz najmu brutto /m2 68 PLN
Winda tak
Anna Skwarciak

Anna Skwarciak

Agent
Nr licencji: 16519

Napisz wiadomość 958 Ofert

Opis nieruchomości

Prowizje dla biura pokrywa Właściciel nieruchomości.

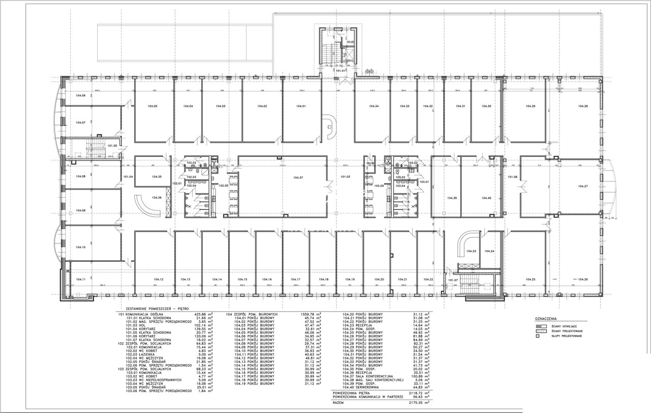
Obiekt biurowo-usługowo-handlowy  o powierzchni 4 000 m2

Parking naziemny 

Proponowana powierzchnia 2 175 m2
Współczynnik części wspólnych -0 %
Dostępność: od zaraz
 
Czynsz najmu powierzchni biurowej – 55,00 PLN/ 1m2/m-c
Opłata service charge – 15,00 PLN/ 1m2 /m-c 

Energia elektryczna, woda, ścieki – opłata wg. wskazań licznika

Prezentowana powierzchnia to lokal o powierzchni 2 175  m2 

Pokoje biurowe, dwie kuchnie, 2 łazienki


Istnieje możliwość najmu połowy modułu ok. 1 100 m2

Układ:

  • Recepcja
  • Pokoje biurowe ok. 30-50 m2 każdy
  • Sale konferencyjne
  • Pokoje śniadań/kuchnie
 STANDARD:
  • Serwerownia
  • Sieć komputerowa
  • Winda osobowa
  • Trzy klatki schodowe
  • Stojaki na rowery
  • Przystosowany dla niepełnosprawnych
  • Bliskość terenów zielonych
  • Monitoring
  • Dozorowany parking 24h/
Dostęp do powierzchni 24 h na dobę, 7 dni w tygodniu
 
Anna Skwarciak ASK OFFICE
+48 609 842 932
a.skwarciak@askhome

 

Agent

Proszę wprowadzić poprawne imię i nazwisko
Proszę wprowadzić poprawny numer telefonu
Proszę wprowadzić poprawny adres e-mail
Proszę zaznaczyć wymagane zgody
Rozwiąż równanie:
13 8
Niepoprawny wynik