Lokal na wynajem Wrocław, Fabryczna, Muchobór Mały

53.00 m²
55,00 zł/m2
1 piętro
ASO-LW-40795

2 915 zł

Lokal na wynajem
Nowa oferta

Szczegóły oferty

Symbol oferty ASO-LW-40795
Powierzchnia 53,00 m²
Rodzaj budynku biurowiec
Opłaty wg liczników prąd
Piętro 1
Stan lokalu bardzo dobry
Typ kaucji do uzgodnienia
Okna aluminiowe
Instalacje dobre
Rodzaj lokalu jednopoziomowy
Przeznaczenie lokalu usługowy, biurowy, biurowo - magazynowy
Czynsz najmu netto /m2 55 PLN
Czynsz najmu brutto /m2 68 PLN
Winda tak
Anna Skwarciak

Anna Skwarciak

Agent
Nr licencji: 16519

Napisz wiadomość 923 Ofert

Opis nieruchomości

Prowizje dla biura pokrywa Właściciel nieruchomości.

Trzykondygnacyjny obiekt biurowo-laboratoryjny o powierzchni do wynajmu 3 656 m
2, oddany do użytku w 2009 r. 

Parking naziemny 
Proponowana powierzchnia 15
- 1000 m2
Współczynnik części wspólnych -0 %
Dostępność: 1.12.2025r.
 
Czynsz najmu powierzchni biurowej – 55,00 PLN/ 1m2/m-c
Opłata service charge – 35,00  PLN/ 1m2 /m-c
Chłodzenie- 6,10 / 1m2 /m-c
Opłata za energię elektryczną,
 
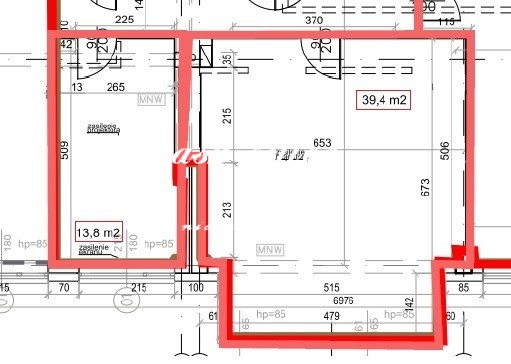
Prezentowana powierzchnia to lokal o powierzchni 53 m2 ( 39,4m2;13,8m2)



Łazienki w częściach wspólnych.

Do wynajęcia również na pokoje:

  • 13,80 m2
  • 18,80 m2
  • 39,40 m2
  • 48,80 m2
  • 69,50 m2

Standard:
  • dostęp do biur 24 h na dobę, 7 dni w tygodniu,
  • łatwe parkowanie – miejsca parkingowe dla pracowników firm oraz gości, dostępne są zarówno w parkingach naziemnych, jak i dwóch parkingach podziemnych,
  • nowoczesną infrastrukturę teleinformatyczną,
  • całodobowy monitoring i ochronę budynków,
  • wsparcie w budowaniu relacji biznesowych, współpracy z ośrodkami naukowymi oraz w działaniach promocyjnych,
  • możliwość korzystania z innych produktów i usług biznesowych  


Dostęp do powierzchni 24 h na dobę, 7 dni w tygodniu
 
Anna Skwarciak ASK OFFICE
+48 609 842 932
a.skwarciak@askhome
.
 

Podobne oferty

Lokal na wynajem

Wrocław, Fabryczna

64 m2 56,69 zł/m2

Lokal na wynajem

Wrocław, Fabryczna

66 m2 55,00 zł/m2

Lokal na wynajem

Wrocław, Fabryczna

42 m2 49,00 zł/m2

Lokal na wynajem

Wrocław, Fabryczna

64 m2 45,00 zł/m2

Agent

Proszę wprowadzić poprawne imię i nazwisko
Proszę wprowadzić poprawny numer telefonu
Proszę wprowadzić poprawny adres e-mail
Proszę zaznaczyć wymagane zgody
Rozwiąż równanie:
18 8
Niepoprawny wynik