Lokal na wynajem Wrocław, Stare Miasto, Przedmieście Świdnickie

175.00 m²
63,00 zł/m2
4 piętro
ASO-LW-41359

11 025 zł

Lokal na wynajem
Nowa oferta

Szczegóły oferty

Symbol oferty ASO-LW-41359
Powierzchnia 175,00 m²
Opłaty wg liczników CO, prąd, Woda ciepła, Woda zimna
Piętro 4
Stan lokalu do wprowadzenia
Typ kaucji do uzgodnienia
Okna PCV
Przeznaczenie lokalu biurowo - magazynowy, biurowy, handlowo-usługowy
Czynsz najmu netto /m2 63 PLN
Czynsz najmu brutto /m2 77 PLN
Winda tak
Anna Skwarciak

Anna Skwarciak

Agent
Nr licencji: 16519

Napisz wiadomość 986 Ofert

Opis nieruchomości

Prowizje dla biura pokrywa Właściciel Nieruchomości


Kompleks biurowy  usytuowany w Ścisłym Centrum
Biurowiec Klasy B+
Parking podziemny na 132 miejsc postojowych
Proponowana powierzchnia 38-183m2
Współczynnik części wspólnych -15 %
Dostępność: 1.07.2025 r.
 
Czynsz najmu powierzchni biurowej – 63,00PLN/ 1m2/m-c
Opłata service charge – 7,00 PLN/ 1m2 /m-c
Media według zużycia
1 miejsce postojowe  220  PLN / m-c

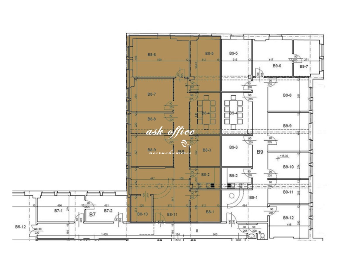
Proponowana powierzchnia: 175m2 
Sekretariat, salki konferencyjne, sześć gabinetów, archiwum, serwerownia, kuchnia.
Kuchnia w częściach wspólnych


INFORMACJE TECHNICZNE
System ochrony budynku
Budynek objęty jest całodobową ochroną osobową, przez siedem dni w tygodniu. Ponadto w budynku funkcjonuje system monitoringu wizyjnego wraz z rejestracją. Na system ten składa się zestaw kamer zainstalowanych w miejscach pozwalających kontrolować ruch osobowy w budynku oraz na parkingu.
Instalacje w budynku
Konstrukcję budynku stanowią mury nośnie wykonane z cegły ceramicznej, na których oparte są stropy żelbetonowe. Budynek posiada pełne uzbrojenie techniczne, tj. przyłącza: wodne, kanalizacyjne, elektryczne oraz grzewcze. Instalacje w budynku: – centralne ogrzewanie, zasilane z miejskiej sieci ciepłowniczej, – cieplej i zimnej wody, – kanalizacji deszczowej i sanitarnej, – instalacja SAP, – instalacja oddymiająca klatki schodowe, – odgromowa, – wewnętrzna sieć hydrantowa, – wentylacja mechaniczna nawiewno – wywiewna i klimatyzacja, – sieć logiczna w każdym wynajmowanym lokalu, – piętra I i III wyposażone są w podłogę techniczną.
Powierzchnie użytkowe
W pięciokondygnacyjnym budynku, od parteru do czwartego piętra przygotowano pomieszczenia biurowe, o łącznej powierzchni ok. 6.000 m2. W piwnicach budynku wydzielono pomieszczenia magazynowe na potrzeby najemców.
Parking
Na terenie ogrodzonego parkingu wydzielono 132 stanowiska do parkowania samochodów osobowych najemców oraz ich klientów. Pomyślano również o osobach dojeżdżających do pracy rowerami, dla których ustawiono odpowiednią ilość stojaków do przypinania rowerów.
Anna Skwarciak ASK OFFICE
+48 609 842 932
a.skwarciak@askhome.pl
Więcej ofert na stronie: www.askhome.pl
Wszelkie podane przez Pośrednika informacje nie są ofertą w rozumieniu Kodeksu Cywilnego
 

Podobne oferty

Lokal na wynajem

Wrocław, Stare Miasto

134 m2 59,00 zł/m2

Lokal na wynajem

Wrocław, Stare Miasto

190 m2 42,00 zł/m2

Lokal na wynajem

Wrocław, Stare Miasto

197 m2 51,00 zł/m2

Lokal na wynajem

Wrocław, Stare Miasto

196 m2 43,00 zł/m2

Agent

Proszę wprowadzić poprawne imię i nazwisko
Proszę wprowadzić poprawny numer telefonu
Proszę wprowadzić poprawny adres e-mail
Proszę zaznaczyć wymagane zgody
Rozwiąż równanie:
26 7
Niepoprawny wynik