Lokal na wynajem Wrocław, Stare Miasto, Przedmieście Świdnickie

137.00 m²
83,50 zł/m2
parter
ASO-LW-40089

11 440 zł

Lokal na wynajem
Nowa oferta

Szczegóły oferty

Symbol oferty ASO-LW-40089
Powierzchnia 137,00 m²
Rodzaj budynku BUDYNEK BIUROWY
Piętro parter
Stan lokalu do wykończenia
Typ kaucji trzymiesięczna
Okna PCV
Instalacje dobre
Przeznaczenie lokalu biurowo - magazynowy, biurowy, handlowo-usługowy, handlowy, inny, magazynowy
Czynsz najmu netto /m2 84 PLN
Czynsz najmu brutto /m2 102 PLN
Winda tak
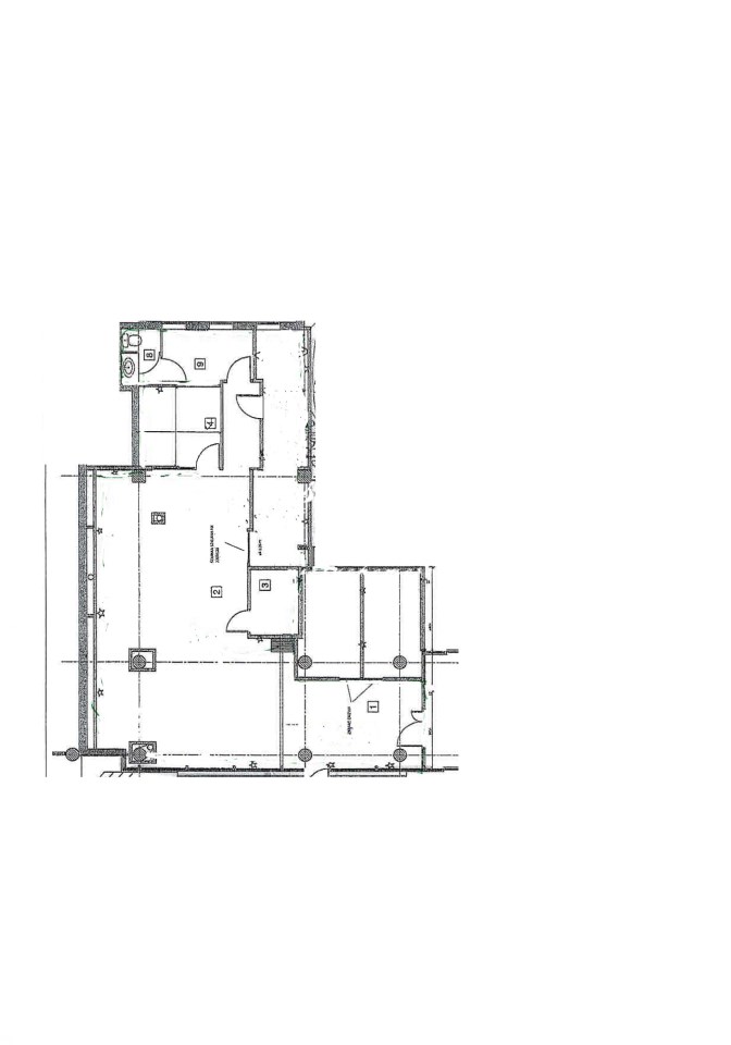
Pomieszczenia
Anna Skwarciak

Anna Skwarciak

Agent
Nr licencji: 16519

Napisz wiadomość 851 Ofert

Opis nieruchomości

Prowizje dla biura pokrywa Właściciel nieruchomości.

Kompleks biurowy  usytuowany w Centrum Wrocławia
Biurowiec Klasy A
Całkowita powierzchnia budynku: 6 510m2
Parking podziemny
Parking naziemny
Proponowana powierzchnia 35-1000 m2
Współczynnik części wspólnych -10%
Dostępność: 1.06.2025r.
 
Czynsz najmu powierzchni usługowej – 83,50 PLN/ 1m2/m-c
Opłata service charge – 26,50 PLN/ 1m² /m-c
Opłata za energię elektryczną, wodę według zużycia
1 miejsce postojowe  250 - 550 PLN / m-c

Sugerowana powierzchnia lokal na parterze  137 m2.

Duże okna wystawienniczo reklamowe
Sekretariat, open space, 4 salki konferencyjne, kuchnia , toalety, archiwum.



 
Standard:

  • zasilanie elektryczne dwustronne, stacja transformatorowa w budynku
  • zasilanie CO, energia cieplna, węzeł cieplny w budynku
  • klimakonwektorowy  system schładzania i ogrzewania  budynku
  • stolarka okienna: aluminium / okna uchylne
  • windy szt. 2
  • balkony szt. 3
  • taras widokowy
  • całodobowa recepcja/ochrona
  • audytoryjna sala konferencyjna na 100 miejsc
  • stolarka drzwiowa: aluminium, drewno, szkło
  • ściany: korytarze murowane, działowe GK
  • sufity podwieszane systemowe
  • podłoga -gres
  • okablowanie teletechniczne
  • system p.poż.
  • system CCTV
  • ochrona/monitoring 
 
Anna Skwarciak ASK OFFICE
+48 609 842 932
a.skwarciak@askhome.pl

 

Podobne oferty

Lokal na wynajem

Wrocław, Stare Miasto

197 m2 51,00 zł/m2

Lokal na wynajem

Wrocław, Stare Miasto

196 m2 43,00 zł/m2

Lokal na wynajem

Wrocław, Stare Miasto

164 m2 62,40 zł/m2

Lokal na wynajem

Wrocław, Stare Miasto

225 m2 50,00 zł/m2

Agent

Proszę wprowadzić poprawne imię i nazwisko
Proszę wprowadzić poprawny numer telefonu
Proszę wprowadzić poprawny adres e-mail
Proszę zaznaczyć wymagane zgody
Rozwiąż równanie:
15 1
Niepoprawny wynik