Lokal na wynajem Wrocław, Stare Miasto, Centrum

299.00 m²
55,00 zł/m2
3 piętro
ASO-LW-40965

16 445 zł

Lokal na wynajem
Nowa oferta

Szczegóły oferty

Symbol oferty ASO-LW-40965
Powierzchnia 299,00 m²
Rodzaj budynku biurowiec
Opłaty wg liczników prąd
Piętro 3
Stan lokalu bardzo dobry
Typ kaucji do uzgodnienia
Instalacje częściowo wymienione
Przeznaczenie lokalu biurowy
Czynsz najmu netto /m2 57 PLN
Czynsz najmu brutto /m2 68 PLN
Winda tak
Anna Skwarciak

Anna Skwarciak

Agent
Nr licencji: 16519

Napisz wiadomość 924 Ofert

Opis nieruchomości


Prowizje pokrywa Właściciel nieruchomości

Kompleks biurowy  usytuowany nieopodal  wrocławskiej Starówki
Biurowiec Klasy B
Proponowana powierzchnia 91 -1000 m2
Współczynnik części wspólnych -8 %
Dostępność: 1.02.2025r.
 
Czynsz najmu powierzchni biurowej – 55,00 PLN/ 1m2/m-c
Opłata service charge – 24,00  PLN/ 1m2 /m-c
Opłata za energię elektryczną według zużycia

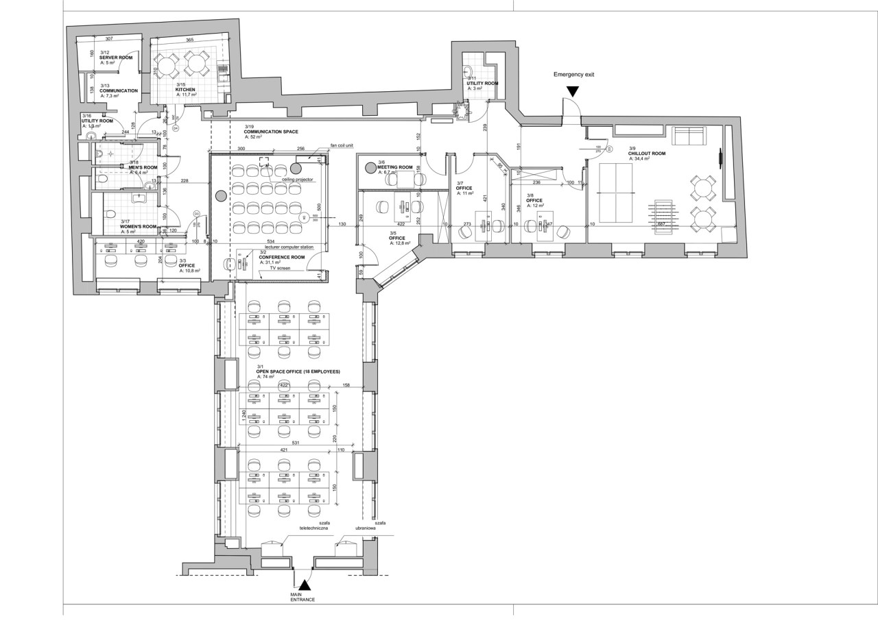
Prezentowana powierzchnia to lokal o powierzchni 299 m2.
Powierzchnia otwarta ,salki konferencyjne, gabinet, socjal, toaleta.

W obiekcie dostępne lokale:

  • 351m2
  • 93m2
  • 299m2

Standard:
- powierzchnia wykończona
wysokość pomieszczeń: 3-4 m
- wykładzina dywanowa
- oświetlenie rastrowe
- klimatyzacja
- instalacja elektryczna
- Internet światłowodowy
- recepcja
- ogrzewanie miejskie Fortum

Dostęp do powierzchni 24 h na dobę, 7 dni w tygodniu
 
Anna Skwarciak ASK OFFICE
+48 609 842 932
a.skwarciak@askhome
Więcej ofert na stronie: www.askhome.pl

Wszelkie podane przez Pośrednika informacje nie są ofertą w rozumieniu Kodeksu Cywilnego

 

Podobne oferty

Lokal na wynajem

Wrocław, Stare Miasto

198 m2 59,00 zł/m2

Lokal na wynajem

Wrocław, Stare Miasto

234 m2 58,97 zł/m2

Lokal na wynajem

Wrocław, Stare Miasto

264 m2 62,40 zł/m2

Lokal na wynajem

Wrocław, Stare Miasto

299 m2 65,00 zł/m2

Agent

Proszę wprowadzić poprawne imię i nazwisko
Proszę wprowadzić poprawny numer telefonu
Proszę wprowadzić poprawny adres e-mail
Proszę zaznaczyć wymagane zgody
Rozwiąż równanie:
30 7
Niepoprawny wynik