Lokal na wynajem Wrocław, Stare Miasto, Centrum

20.00 m²
85,00 zł/m2
3 piętro
ASO-LW-39947

1 700 zł

Lokal na wynajem
Nowa oferta

Szczegóły oferty

Symbol oferty ASO-LW-39947
Powierzchnia 20,00 m²
Rodzaj budynku biurowiec
Opłaty wg liczników CO, prąd, woda
Piętro 3
Stan lokalu wysoki standard
Typ kaucji dwumiesięczna
Przeznaczenie lokalu biurowy
Czynsz najmu netto /m2 67 PLN
Czynsz najmu brutto /m2 105 PLN
Winda tak
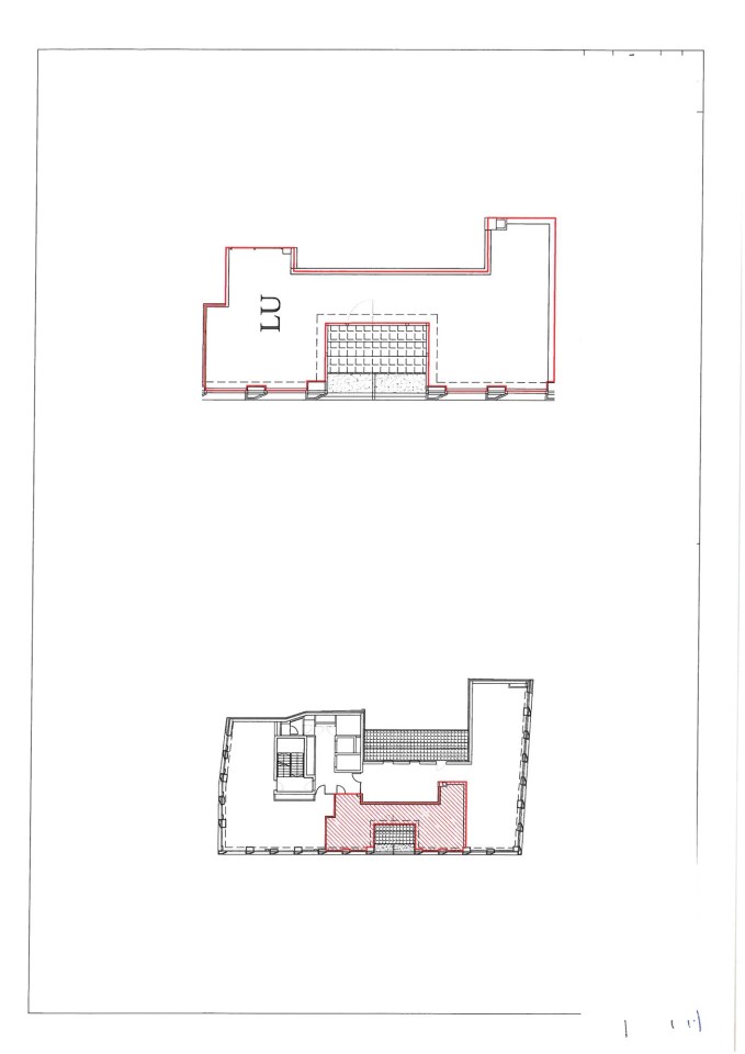
Pomieszczenia
Anna Skwarciak

Anna Skwarciak

Agent
Nr licencji: 16519

Napisz wiadomość 829 Ofert

Opis nieruchomości

Prowizje dla biura pokrywa Właściciel nieruchomości.

Obiekt biurowy siedmiokondygnacyjny.

Proponowana powierzchnia 66 m2
Współczynnik części wspólnych -0 %

Dostępność: od 1.04. 2025r.
 
Czynsz najmu powierzchni biurowej – 1700, 00 zł netto/mc


Prezentowana powierzchnia to lokal o powierzchni: 17 m2.


Hol, cztery, gabinety, kuchnia, taras.


Łazienka  w częściach wspólnych.


Charakterystyka:

  • reprezentacyjny hall wejściowy
  • 2 windy – klatka schodowa
  • podwyższony standard wykończenia
  • instalację wentylacyjną/klimatyzacyjną, niezależną dla każdej kondygnacji
  • instalację przeciwpożarową
  • Internet szerokopasmowy
  • System Zarządzania Budynkiem (BMS)
  • przejrzysty system oznakowań budynku



Dostęp do powierzchni 24 h na dobę, 7 dni w tygodniu
 
Anna Skwarciak ASK OFFICE
+48 609 842 932
a.skwarciak@askhome

Więcej ofert ma stronie www.askhome.pl

 
Wszelkie podane przez Pośrednika informacje nie są ofertą w rozumieniu Kodeksu Cywilnego

 

Podobne oferty

Lokal na wynajem

Wrocław, Stare Miasto

36 m2 51,00 zł/m2

Lokal na wynajem

Wrocław, Stare Miasto

28 m2 45,21 zł/m2

Lokal na wynajem

Wrocław, Stare Miasto

32 m2 44,00 zł/m2

Lokal na wynajem

Wrocław, Stare Miasto

28 m2 51,00 zł/m2

Agent

Proszę wprowadzić poprawne imię i nazwisko
Proszę wprowadzić poprawny numer telefonu
Proszę wprowadzić poprawny adres e-mail
Proszę zaznaczyć wymagane zgody
Rozwiąż równanie:
18 3
Niepoprawny wynik