Lokal na wynajem Wrocław, Fabryczna

321.00 m²
64,00 zł/m2
2 piętro
ASO-LW-41061

20 544 zł

Lokal na wynajem
Nowa oferta

Szczegóły oferty

Symbol oferty ASO-LW-41061
Powierzchnia 321,00 m²
Rodzaj budynku biurowiec
Opłaty wg liczników prąd
Piętro 2
Stan lokalu bardzo dobry
Typ kaucji do uzgodnienia
Okna aluminiowe
Instalacje dobre
Rodzaj lokalu jednopoziomowy
Przeznaczenie lokalu biurowy, usługowy
Czynsz najmu netto /m2 64 PLN
Czynsz najmu brutto /m2 78 PLN
Winda tak
Anna Skwarciak

Anna Skwarciak

Agent
Nr licencji: 16519

Napisz wiadomość 935 Ofert

Opis nieruchomości

Prowizje pokrywa Właściciel nieruchomości

Kompleks biurowy  usytuowany jest w zachodniej części Wrocławia.
Biurowiec Klasy A

Parking naziemny 1miejsce/ 65 m2 najmowanej  powierzchni
Proponowana powierzchnia 120 m2- 450m2
Współczynnik części wspólnych 0%

Dostępność: 1.12.2025 r.
 
Czynsz najmu powierzchni biurowej – 64,00 PLN/ 1m2/m-c
S
ervice charge - 19,90 PLN/1m2/m-c
Energia według zużycia.


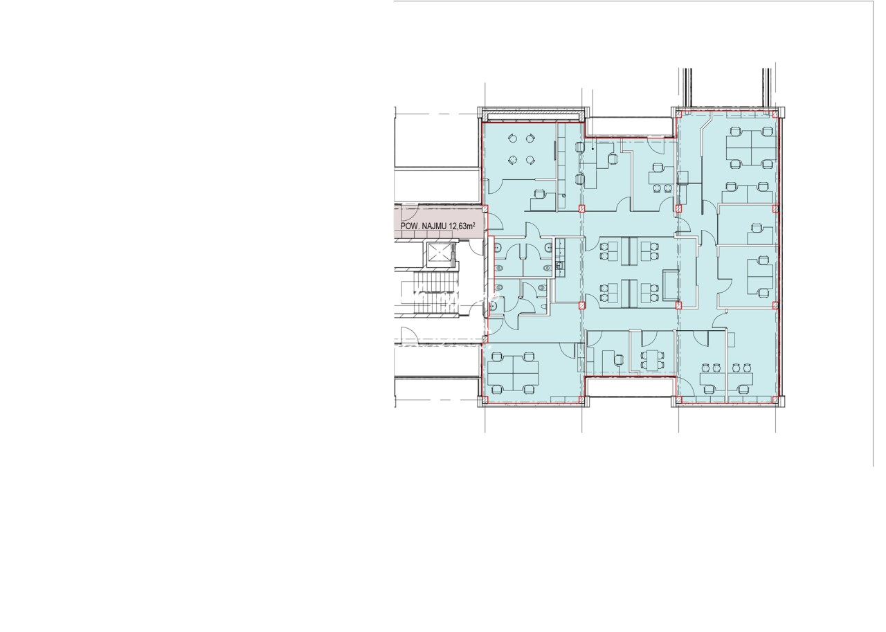
Prezentowany lokal o powierzchni  321 m2.




Hol, dziesięć zamkniętych pokoi ,kuchnia,  dwie toalety.

Proponowane lokale:  

  • 120 m2
  • 207 m2
  • 321 m2
Standard:
- powierzchnia wykończona
- pokoje  nie umeblowane
wysokość pomieszczeń: 2,80m
- sufity podwieszane

- oświetlenie ledowe
- instalacja SAP
- systemy klimatyzacji i wentylacji mechanicznej zabudowane w suficie
   podwieszanym
- wentylacja
- klimatyzacja w każdym pokoju regulowana indywidualnie
- instalacja elektryczna z pełnym osprzętem elektroinstalacyjnym
- instalacja teletechniczna
- ogrzewanie:  klimatyzacja
- winda

Dostęp do powierzchni 24 h na dobę, 7 dni w tygodniu
 
Anna Skwarciak ASK OFFICE
+48 609 842 932
a.skwarciak@askhome.pl

 

Podobne oferty

Lokal na wynajem

Wrocław, Fabryczna

280 m2 60,00 zł/m2

Lokal na wynajem

Wrocław, Fabryczna

290 m2 55,86 zł/m2

Lokal na wynajem

Wrocław, Fabryczna

301 m2 75,20 zł/m2

Lokal na wynajem

Wrocław, Fabryczna

310 m2 51,00 zł/m2

Agent

Proszę wprowadzić poprawne imię i nazwisko
Proszę wprowadzić poprawny numer telefonu
Proszę wprowadzić poprawny adres e-mail
Proszę zaznaczyć wymagane zgody
Rozwiąż równanie:
12 5
Niepoprawny wynik