Lokal na wynajem Wrocław, Fabryczna, Grabiszyn

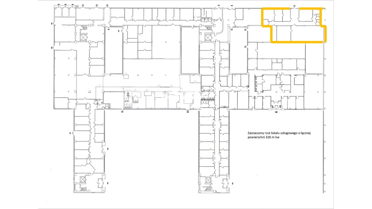
326.00 m²
65,00 zł/m2
parter
ASO-LW-41334

21 190 zł

Lokal na wynajem
Nowa oferta

Szczegóły oferty

Symbol oferty ASO-LW-41334
Powierzchnia 326,00 m²
Rodzaj budynku BUDYNEK BIUROWY
Piętro parter
Stan lokalu dobry
Typ kaucji dwumiesięczna
Okna PCV
Przeznaczenie lokalu biurowo - magazynowy, biurowy, handlowo-usługowy, handlowy, magazynowy, usługowy
Czynsz najmu brutto /m2 68 PLN
Winda tak
Anna Skwarciak

Anna Skwarciak

Agent
Nr licencji: 16519

Napisz wiadomość 980 Ofert

Opis nieruchomości

Prowizje dla biura pokrywa Właściciel nieruchomości.

Obiekt biurowy o powierzchni 14 000  m2

Parking naziemny – 200 miejsc postojowych
Miejsce postojowe 300,00 PLN /m-c

Proponowana powierzchnia 326 m2
Współczynnik części wspólnych -0 %
Dostępność: do uzgodnienia
 
Czynsz najmu powierzchni biurowej – 65,00 PLN/ 1m2/m-c
Opłata service charge – 10,00 PLN/ 1m2 /m-c 

Prezentowana powierzchnia to lokal o powierzchni  326 m2 .

Open space, pokoje biurowe, salki konferencyjne,
kuchnia,  łazienki.


Standard:

  • Dozorowany parking 24h/
  • Sale konferencyjne
  • Ochrona i monitoring
  • Pokoje śniadań/kuchnie
  • Lokal gastronomiczny
  • Nowoczesne windy osobowe i osobowo-towarowe.
  • Stojaki na rowery
  • Serwis sprzątający, konserwatorzy
  • Patia zieleni i strefy odpoczynku


Dostęp do powierzchni 24 h na dobę, 7 dni w tygodniu
 
Anna Skwarciak ASK OFFICE
+48 609 842 932
a.skwarciak@askhome

Wszelkie podane przez Pośrednika informacje nie są ofertą w rozumieniu Kodeksu Cywilnego

 

Podobne oferty

Lokal na wynajem

Wrocław, Fabryczna

280 m2 60,00 zł/m2

Lokal na wynajem

Wrocław, Fabryczna

290 m2 55,86 zł/m2

Lokal na wynajem

Wrocław, Fabryczna

301 m2 75,20 zł/m2

Lokal na wynajem

Wrocław, Fabryczna

310 m2 51,00 zł/m2

Agent

Proszę wprowadzić poprawne imię i nazwisko
Proszę wprowadzić poprawny numer telefonu
Proszę wprowadzić poprawny adres e-mail
Proszę zaznaczyć wymagane zgody
Rozwiąż równanie:
26 7
Niepoprawny wynik