Lokal na wynajem Wrocław, Krzyki

382.00 m²
60,00 zł/m2
3 piętro
ASO-LW-40621

22 920 zł

Lokal na wynajem
Nowa oferta

Szczegóły oferty

Symbol oferty ASO-LW-40621
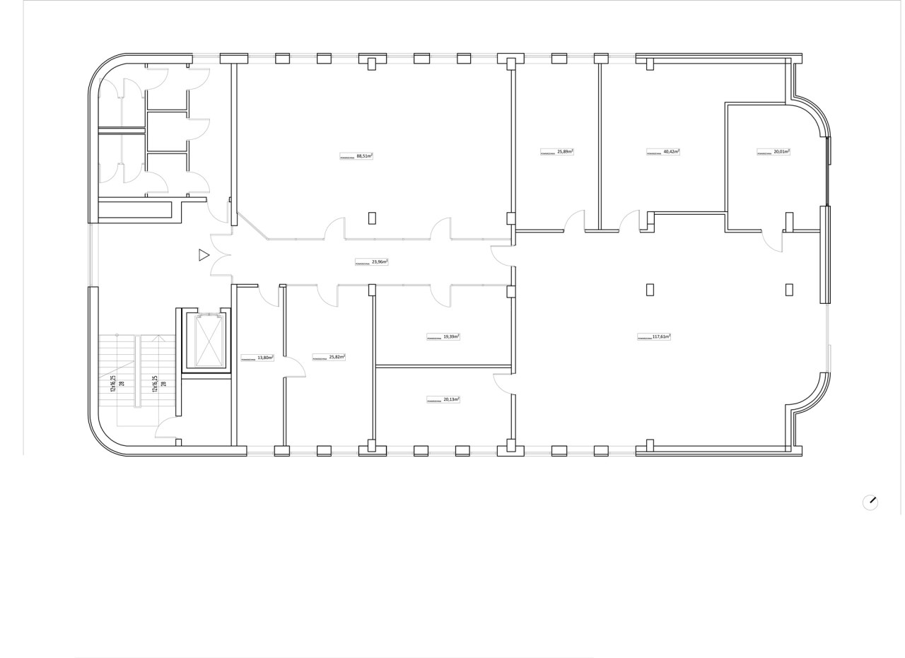
Powierzchnia 382,00 m²
Rodzaj budynku BUDYNEK BIUROWY
Opłaty wg liczników prąd
Piętro 3
Stan lokalu do wprowadzenia
Typ kaucji do uzgodnienia
Okna PCV
Instalacje dobre
Rodzaj lokalu jednopoziomowy
Przeznaczenie lokalu biurowy
Czynsz najmu netto /m2 60 PLN
Czynsz najmu brutto /m2 75 PLN
Winda tak
Pomieszczenia
Anna Skwarciak

Anna Skwarciak

Agent
Nr licencji: 16519

Napisz wiadomość 872 Ofert

Opis nieruchomości

Prowizje dla biura gwarantuje Właściciel nieruchomości.

Kompleks biurowy  usytuowany przy jednej z głównych arterii komunikacyjnych.
Biurowiec Klasy B+
Całkowita powierzchnia budynku: 11 600,00 m2
Parking Naziemny na 343  miejsc postojowych
Proponowana powierzchnia 31-407 m2
Współczynnik części wspólnych -0%
Dostępność: 1.02.2025r.
 
Czynsz najmu powierzchni biurowej – 60,00 PLN/ 1m2/m-c
Opłata service charge – 16,00 PLN/ 1m2 /m-c
Energia według zużycia


Ogólnodostępny parking
Proponowana powierzchnia:

Powierzchnia netto biur w module 382,00 m2
Hol, open space, pokoje zamknięte, gabinet, dwie salki konferencyjne.

Do wynajęcia również na pokoje.




Standard:

  • sufity podwieszane
  • optymalne doświetlenie pomieszczeń
  • wysokie pomieszczenia
  • uchylne okna
  • rolety okienne
  • optymalny dostęp do światła dziennego
  • wykładzina dywanowa w płytkach
  • pełna infrastruktura teletechniczna
  • energooszczędny system ogrzewania, wentylacji i klimatyzacji
  • kontrola dostępu
Anna Skwarciak ASK OFFICE
+48 609 842 932
a.skwarciak@askhome.pl

 

Podobne oferty

Lokal na wynajem

Wrocław, Krzyki

265 m2 69,00 zł/m2

Lokal na wynajem

Wrocław, Krzyki

283 m2 74,00 zł/m2

Lokal na wynajem

Wrocław, Krzyki

325 m2 60,00 zł/m2

Lokal na wynajem

Wrocław, Krzyki

249 m2 69,00 zł/m2

Agent

Proszę wprowadzić poprawne imię i nazwisko
Proszę wprowadzić poprawny numer telefonu
Proszę wprowadzić poprawny adres e-mail
Proszę zaznaczyć wymagane zgody
Rozwiąż równanie:
18 2
Niepoprawny wynik