Lokal na wynajem Wrocław, Stare Miasto, Przedmieście Świdnickie

87.00 m²
57,00 zł/m2
3 piętro
ASO-LW-40266

4 959 zł

Lokal na wynajem
Nowa oferta

Szczegóły oferty

Symbol oferty ASO-LW-40266
Powierzchnia 87,00 m²
Rodzaj budynku BUDYNEK BIUROWY
Opłaty wg liczników prąd
Piętro 3
Stan lokalu dobry
Typ kaucji dwumiesięczna
Okna PCV
Rodzaj lokalu jednopoziomowy
Przeznaczenie lokalu biurowy
Czynsz najmu brutto /m2 70 PLN
Winda tak
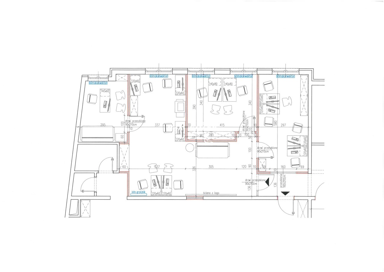
Pomieszczenia
Anna Skwarciak

Anna Skwarciak

Agent
Nr licencji: 16519

Napisz wiadomość 860 Ofert

Opis nieruchomości

Prowizje dla biura pokrywa Właściciel nieruchomości.

Kompleks biurowy  usytuowany w Centrum Wrocławia
Biurowiec Klasy b

Parking naziemny
Proponowana powierzchnia 87-300 m2
Współczynnik części wspólnych -10,80%
Dostępność: 1.09.2025r.
 
Czynsz najmu powierzchni biurowej – 57,00 PLN/ 1m2/m-c
Opłata service charge – 22,29 PLN/ 1m² /m-c
Opłata za energię elektryczną
1 miejsce postojowe  278,00 PLN / m-c

Sugerowana powierzchnia lokal na III p.  87 m2.

  • hol
  • dwa gabinety
  • salka konferencyjna

 Socjal,  toalety  w częściach wspólnych.

Dostępne lokale:

- 92m2

-203m2
 
Standard:
  • zasilanie elektryczne
  • klimakonwektorowy  system schładzania i ogrzewania  budynku
  • stolarka okienna: aluminium / okna uchylne
  • windy szt. 1
  •  recepcja  6-22:00
  • ściany: korytarze murowane, działowe GK
  • sufity podwieszane systemowe
  • wykładziny dywanowe
  • okablowanie teletechniczne
  • system p.poż.
  • ochrona/monitoring 
 
Anna Skwarciak ASK OFFICE
+48 609 842 932
a.skwarciak@askhome.pl

 

Podobne oferty

Lokal na wynajem

Wrocław, Stare Miasto

71 m2 51,00 zł/m2

Lokal na wynajem

Wrocław, Stare Miasto

66 m2 60,00 zł/m2

Lokal na wynajem

Wrocław, Stare Miasto

83 m2 51,00 zł/m2

Lokal na wynajem

Wrocław, Stare Miasto

120 m2 38,00 zł/m2

Agent

Proszę wprowadzić poprawne imię i nazwisko
Proszę wprowadzić poprawny numer telefonu
Proszę wprowadzić poprawny adres e-mail
Proszę zaznaczyć wymagane zgody
Rozwiąż równanie:
23 6
Niepoprawny wynik