| Symbol oferty | ASO-LW-40113 | 
| Powierzchnia | 104,00 m² | 
| Rodzaj budynku | biurowiec | 
| Opłaty wg liczników | prąd | 
| Piętro | 2 | 
| Liczba pięter w budynku | 6 | 
| Stan lokalu | bardzo dobry | 
| Typ kaucji | trzymiesięczna | 
| Okna | aluminiowe | 
| Instalacje | dobre | 
| Rodzaj lokalu | jednopoziomowy | 
| Przeznaczenie lokalu | usługowy, biurowy | 
| Czynsz najmu netto /m2 | 76 PLN | 
| Czynsz najmu brutto /m2 | 93 PLN | 
| Winda | tak | 
| Liczba wind | 3 | 
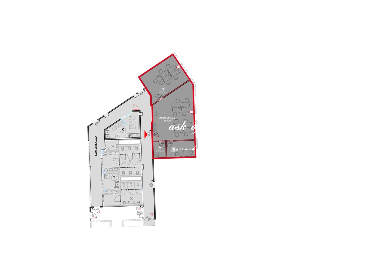
| Pomieszczenia | |
 
                        
                    
                            Prowizje pokrywa Właściciel nieruchomości
Kompleks biurowy  usytuowany jest w południowo-wschodniej części i Wrocławia
Biurowiec Klasy A
Całkowita powierzchnia budynku: 13 500m2
Kondygnacje - 6
Parking  naziemny 40 miejsc
Parking podziemny  155 m2
Współczynnik miejsc parkingowych 1/70 mkw
Proponowana powierzchnia 58m2 -648 m2
Współczynnik części wspólnych 6%
Dostępność: 1.09.2025 r.
 
Czynsz najmu powierzchni biurowej – 76,00 PLN/ 1m2/m-c
Service charge - 23,00 PLN/1m2/m-c
Media według zużycia
1 miejsce postojowe  300,00PLN/ m-c
Prezentowana powierzchnia lokal 104 m2 brutto
Open space, gabinet, salka konferencyjna, serwerownia.
Umowa na min. 36 miesięcy.
Dostępne lokale na  II p.
69m2
109m2
188m2
197m2
81m2
85m2
Udogodnienia dla najemców
Agent