Lokal na wynajem Wrocław, Stare Miasto, Centrum

241.00 m²
40,00 zł/m2
5 piętro
ASO-LW-40261

9 640 zł

Lokal na wynajem
Nowa oferta

Szczegóły oferty

Symbol oferty ASO-LW-40261
Powierzchnia 241,00 m²
Rodzaj budynku biurowiec
Opłaty wg liczników prąd
Piętro 5
Stan lokalu bardzo dobry
Typ kaucji do uzgodnienia
Instalacje częściowo wymienione
Przeznaczenie lokalu biurowy
Czynsz najmu netto /m2 40 PLN
Czynsz najmu brutto /m2 49 PLN
Winda tak
Pomieszczenia
Anna Skwarciak

Anna Skwarciak

Agent
Nr licencji: 16519

Napisz wiadomość 864 Ofert

Opis nieruchomości


Prowizje pokrywa Właściciel nieruchomości

Kompleks biurowy  usytuowany nieopodal  wrocławskiej Starówki
Biurowiec Klasy B
Proponowana powierzchnia 91 -1000 m2
Współczynnik części wspólnych -5 %
Dostępność: 1.03.2025r.
 
Czynsz najmu powierzchni biurowej – 57,00 PLN/ 1m2/m-c
Opłata service charge – 21,00  PLN/ 1m2 /m-c
Opłata za energię elektryczną według zużycia

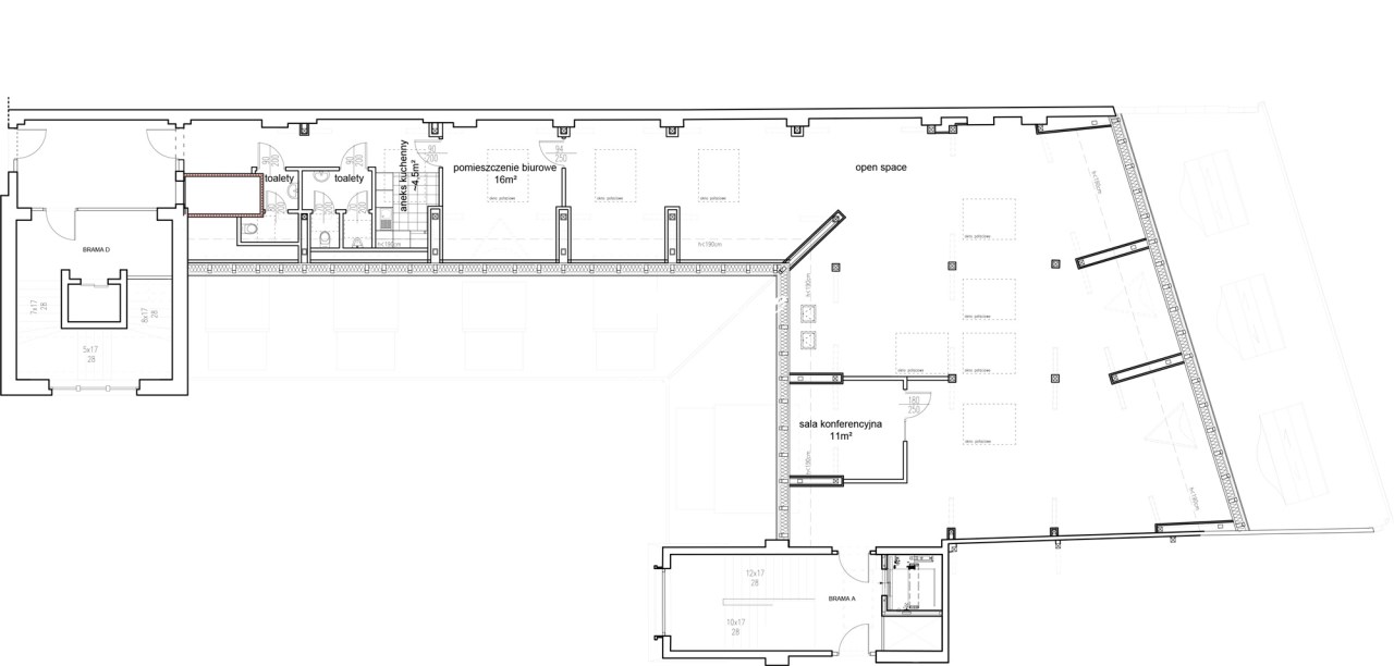
Prezentowana powierzchnia to lokal o powierzchni 241 m2.
Sekretariat, powierzchnia otwarta ,salka konferencyjna, gabinet, socjal, toaleta.

W obiekcie dostępne lokale:

  • 352m2
  • 186m2
  • 91m2
  • 241m2

Standard:
- powierzchnia wykończona
wysokość pomieszczeń: 3-4 m
- wykładzina dywanowa
- oświetlenie ledowe
- klimatyzacja
- instalacja elektryczna
- Internet światłowodowy
- monitoring
- ogrzewanie miejskie Fortum

Dostęp do powierzchni 24 h na dobę, 7 dni w tygodniu
 
Anna Skwarciak ASK OFFICE
+48 609 842 932
a.skwarciak@askhome
Więcej ofert na stronie: www.askhome.pl

Wszelkie podane przez Pośrednika informacje nie są ofertą w rozumieniu Kodeksu Cywilnego

 

Podobne oferty

Lokal na wynajem

Wrocław, Stare Miasto

134 m2 59,00 zł/m2

Lokal na wynajem

Wrocław, Stare Miasto

124 m2 59,00 zł/m2

Lokal na wynajem

Wrocław, Stare Miasto

190 m2 42,00 zł/m2

Lokal na wynajem

Wrocław, Stare Miasto

197 m2 51,00 zł/m2

Agent

Proszę wprowadzić poprawne imię i nazwisko
Proszę wprowadzić poprawny numer telefonu
Proszę wprowadzić poprawny adres e-mail
Proszę zaznaczyć wymagane zgody
Rozwiąż równanie:
25 9
Niepoprawny wynik