Lokal na wynajem Wrocław, Stare Miasto, Rynek

74.00 m²
63,00 zł/m2
3 piętro
ASO-LW-40344

4 662 zł

Lokal na wynajem
Nowa oferta

Szczegóły oferty

Symbol oferty ASO-LW-40344
Powierzchnia 74,00 m²
Rodzaj budynku kamienica
Opłaty wg liczników prąd, CO, woda, Woda ciepła, Woda zimna
Piętro 3
Stan lokalu bardzo dobry
Typ kaucji do uzgodnienia
Okna DREWNIANE NOWY TYP
Instalacje dobre
Rodzaj lokalu jednopoziomowy
Przeznaczenie lokalu biurowy, usługowy
Czynsz najmu netto /m2 63 PLN
Czynsz najmu brutto /m2 78 PLN
Winda tak
Liczba wind 2
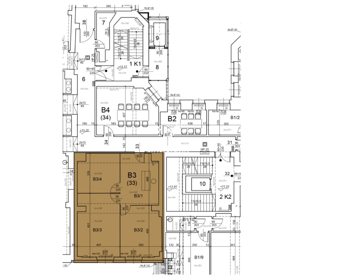
Pomieszczenia
Anna Skwarciak

Anna Skwarciak

Agent
Nr licencji: 16519

Napisz wiadomość 858 Ofert

Opis nieruchomości


Prowizje dla biura pokrywa Właściciel Nieruchomości

Kompleks biurowy  usytuowany w okolicy wrocławskiego Rynku


Biurowiec Klasy A
Proponowana powierzchnia-  20-600 m2
Współczynnik częś3i wspólnych -14 %
Dostępność: 1.09.2025 r.
 
Czynsz najmu powierzchni biurowej – 63,00PLN/ 1m2/m-c
Opłata service charge – 7 PLN/ 1m2 /m-c
Media według zużycia



Proponowana powierzchnia:  74 m2 
Open space podzielony przeszkleniami tworzącymi sekretariat, dwa gabinety i salkę konferencyjną.

Toaleta w częściach wspólnych



System ochrony budynku
Budynek objęty jest całodobową ochroną osobową, przez siedem dni w tygodniu. Ponadto w budynku funkcjonuje system monitoringu wizyjnego wraz z rejestracją. Na system ten składa się zestaw kamer zainstalowanych w miejscach pozwalających kontrolować ruch osobowy w budynku.
Instalacje w budynku
Konstrukcję budynku stanowią mury nośnie wykonane z cegły ceramicznej, na których oparte są stropy żelbetonowe.
Budynek posiada pełne uzbrojenie techniczne, tj. przyłącza: wodne, kanalizacyjne, elektryczne oraz grzewcze.
Instalacje w budynku: – centralne ogrzewanie, zasilane z miejskiej sieci ciepłowniczej, – cieplej i zimnej wody, – kanalizacji deszczowej i sanitarnej, – instalacja SAP z systemem monitoringu przez Straż Pożarną, – instalacja oddymiająca klatki schodowe i patio wewnętrzne, – odgromowa, – wewnętrzna sieć hydrantowa, – wentylacja mechaniczna nawiewno – wywiewna i klimatyzacja, – sieć logiczna w każdym wynajmowanym lokalu.
Powierzchnie użytkowe
Większość powierzchni budynku stanowią pomieszczenia biurowe, zlokalizowane na czterech kondygnacjach – od drugiego do piątego piętra. Na parterze prowadzona jest działalność bankowa i gastronomiczna. Natomiast pierwsze piętro i piwnice budynku przeznaczone są w całości na działalność gastronomiczną i klubową.
Anna Skwarciak ASK OFFICE
+48 609 842 932
a.skwarciak@askhome.pl
Więcej ofert na stronie: www.askhome.pl
Wszelkie podane przez Pośrednika informacje nie są ofertą w rozumieniu Kodeksu Cywilnego

 

Podobne oferty

Lokal na wynajem

Wrocław, Stare Miasto

71 m2 51,00 zł/m2

Lokal na wynajem

Wrocław, Stare Miasto

66 m2 60,00 zł/m2

Lokal na wynajem

Wrocław, Stare Miasto

83 m2 51,00 zł/m2

Lokal na wynajem

Wrocław, Stare Miasto

68 m2 50,00 zł/m2

Agent

Proszę wprowadzić poprawne imię i nazwisko
Proszę wprowadzić poprawny numer telefonu
Proszę wprowadzić poprawny adres e-mail
Proszę zaznaczyć wymagane zgody
Rozwiąż równanie:
24 8
Niepoprawny wynik