Lokal na wynajem Wrocław, Stare Miasto, Rynek

96.00 m²
63,00 zł/m2
3 piętro
ASO-LW-40028

6 048 zł

Lokal na wynajem
Nowa oferta

Szczegóły oferty

Symbol oferty ASO-LW-40028
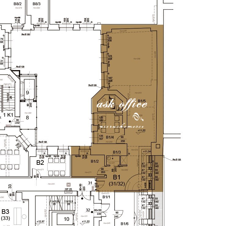
Powierzchnia 96,00 m²
Rodzaj budynku biurowiec
Kaucja zabezp. 6048
Opłaty w czynszu Części wspólne, monitoring, fundusz remontowy
Opłaty wg liczników woda, prąd, CO
Piętro 3
Liczba pięter w budynku 5
Stan lokalu luksusowy
Typ kaucji jednomiesięczna
Okna nowe drewniane
Instalacje wymienione
Przeznaczenie lokalu usługowy, biurowy
Czynsz najmu netto /m2 7 PLN
Czynsz najmu brutto /m2 90 PLN
Ogrzewanie miejskie
Winda tak
Usytuowanie jednostronne
Możliwość parkowania płatne
Położenie lokalu w głównym ciągu pieszych
Wejście od ulicy
Pomieszczenia
Liczba pomieszczeń biurowych 1
Powierzchnia pomieszczeń biurowych od [m2] 30 m2
Liczba pomieszczeń socjalnych 1
Liczba pomieszczeń sanitarnych 1
Anna Skwarciak

Anna Skwarciak

Agent
Nr licencji: 16519

Napisz wiadomość 847 Ofert

Opis nieruchomości

Przedmiotem oferty jest lokal usytuowany na III piętrze luksusowej kamienicy biurowej posadowionej w bliskim sąsiedztwie wrocławskiego Rynku. Lokal o powierzchni 96 m2. Lokal posiada okablowanie strukturalne, instalacje wentylacyjno-klimatyzacyjną. Stylowy obiekt wyposażony w windę. Na parterze recepcja. Istnieje możliwość korzystania z miejsc w parkingu podziemnym abonamentowanym. Współczynnik części wspólnych 13%. Opłata eksploatacyjna w wysokości  7 zł/n2. Opłaty za media według zużycia.  Oferta skierowana do wymagających klientów. Zapraszam na prezentacje. ASK OFFICE, Anna Skwarciak, nr tel. 609 842 932,

Podobne oferty

Lokal na wynajem

Wrocław, Stare Miasto

124 m2 59,00 zł/m2

Lokal na wynajem

Wrocław, Stare Miasto

120 m2 38,00 zł/m2

Lokal na wynajem

Wrocław, Stare Miasto

130 m2 51,00 zł/m2

Lokal na wynajem

Wrocław, Stare Miasto

100 m2 55,00 zł/m2

Agent

Proszę wprowadzić poprawne imię i nazwisko
Proszę wprowadzić poprawny numer telefonu
Proszę wprowadzić poprawny adres e-mail
Proszę zaznaczyć wymagane zgody
Rozwiąż równanie:
26 8
Niepoprawny wynik