Lokal na wynajem Wrocław, Stare Miasto, Centrum

105.00 m²
68,00 zł/m2
1 piętro
ASO-LW-39944

7 140 zł

Lokal na wynajem
Nowa oferta

Szczegóły oferty

Symbol oferty ASO-LW-39944
Powierzchnia 105,00 m²
Rodzaj budynku biurowiec
Opłaty wg liczników CO, prąd, woda
Piętro 1
Stan lokalu wysoki standard
Typ kaucji dwumiesięczna
Przeznaczenie lokalu biurowy
Czynsz najmu netto /m2 67 PLN
Czynsz najmu brutto /m2 83 PLN
Winda tak
Pomieszczenia
Anna Skwarciak

Anna Skwarciak

Agent
Nr licencji: 16519

Napisz wiadomość 829 Ofert

Opis nieruchomości

Prowizje dla biura pokrywa Właściciel nieruchomości.

Obiekt biurowy siedmiokondygnacyjny.

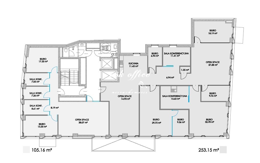
Proponowana powierzchnia 105- 362 m2
Współczynnik części wspólnych -10 %

Dostępność: od 1.02. 2025r.
 
Czynsz najmu powierzchni biurowej – 16,00 EUR/ 1m2/m-c
Opłata service charge – 25,00 PLN/ 1m2 /m-c 

Opłaty za media według zużycia.

Prezentowana powierzchnia to lokal o powierzchni: 105 m2.


Reprezentatywny hol, ,2  gabinety,3  salki konferencyjne, aneks kuchenny.
Łazienki  w częściach wspólnych.
Dostępne lokale:

  • 105,16m2
  • 255,67m2
  • 124,42m2
  • 236,41m2
  • 362,30m2


Charakterystyka:
  • reprezentatywnt hall wejściowy
  • 2 windy – klatka schodowa
  • podwyższony standard wykończenia
  • instalację wentylacyjną/klimatyzacyjną, niezależna dla każdej kondygnacji
  • instalację przeciwpożarową
  • Internet szerokopasmowy
  • System Zarządzania Budynkiem (BMS)
  • przejrzysty system oznakowań budynku



Dostęp do powierzchni 24 h na dobę, 7 dni w tygodniu
 
Anna Skwarciak ASK OFFICE
+48 609 842 932
a.skwarciak@askhome

Więcej ofert ma stronie www.askhome.pl

 
Wszelkie podane przez Pośrednika informacje nie są ofertą w rozumieniu Kodeksu Cywilnego

 

Podobne oferty

Lokal na wynajem

Wrocław, Stare Miasto

134 m2 59,00 zł/m2

Lokal na wynajem

Wrocław, Stare Miasto

124 m2 59,00 zł/m2

Lokal na wynajem

Wrocław, Stare Miasto

190 m2 42,00 zł/m2

Lokal na wynajem

Wrocław, Stare Miasto

130 m2 51,00 zł/m2

Agent

Proszę wprowadzić poprawne imię i nazwisko
Proszę wprowadzić poprawny numer telefonu
Proszę wprowadzić poprawny adres e-mail
Proszę zaznaczyć wymagane zgody
Rozwiąż równanie:
28 2
Niepoprawny wynik