| Symbol oferty | ASO-LW-39995 | 
| Powierzchnia | 149,00 m² | 
| Rodzaj budynku | biurowiec | 
| Kaucja zabezp. | 8195 | 
| Piętro | 3 | 
| Liczba pięter w budynku | 3 | 
| Stan lokalu | do wprowadzenia | 
| Typ kaucji | do uzgodnienia | 
| Okna | nowe PCV | 
| Instalacje | nowe | 
| Rodzaj lokalu | jednopoziomowy | 
| Przeznaczenie lokalu | biurowy, usługowy | 
| Czynsz najmu netto /m2 | 55 PLN | 
| Czynsz najmu brutto /m2 | 67 PLN | 
| Ogrzewanie | miejskie | 
| Alarm | tak | 
| Winda | tak | 
| Liczba wind | 1 | 
| Możliwość parkowania | w pobliżu | 
| Położenie lokalu | ruchliwa ulica | 
| Wejście | od ulicy | 
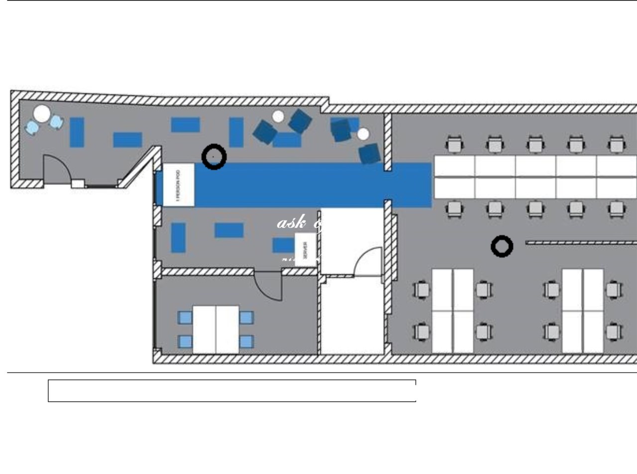
| Pomieszczenia | |
| Liczba pomieszczeń biurowych | 4 | 
 
                        
                    
                            Kompleks biurowy  usytuowany na wrocławskiej Starówce
Biurowiec Klasy B
Proponowana powierzchnia 105-254 m2
Współczynnik części wspólnych -0 %
Dostępność: 1.03.2024r.
 
Czynsz najmu powierzchni biurowej – 55,00 PLN/ 1m2/m-c
Opłata service charge – 13,00  PLN/ 1m2 /m-c
Opłata za energię elektryczną według zużycia
Prezentowana powierzchnia to lokal o powierzchni 149 m2.
Sekretariat hol, powierzchnia open space, gabinet, salka konferencyjna, pokój zamknięty,  toaleta, socjal.
W obiekcie dostępne lokale:
-105 m2
-149 m2
Standard:
- powierzchnia wykończona
- wysokość pomieszczeń: 2,70 m
- wykładzina dywanowa
- oświetlenie ledowe
- klimatyzacja
- instalacja elektryczna
- Internet światłowodowy
- kontrola dostępu
- ogrzewanie miejskie Fortum
Dostęp do powierzchni 24 h na dobę, 7 dni w tygodniu
 
Anna Skwarciak ASK OFFICE
+48 609 842 932
a.skwarciak@askhome
Więcej ofert na stronie: www.askhome.pl
Wszelkie podane przez Pośrednika informacje nie są ofertą w rozumieniu Kodeksu Cywilnego
                        
Agent