Lokal na wynajem Wrocław, Krzyki, Borek

241.00 m²
51,00 zł/m2
4 piętro
ASO-LW-40680

12 291 zł

Lokal na wynajem
Nowa oferta

Szczegóły oferty

Symbol oferty ASO-LW-40680
Powierzchnia 241,00 m²
Rodzaj budynku biurowiec
Piętro 4
Liczba pięter w budynku 4
Stan lokalu idealny
Typ kaucji dwumiesięczna
Okna nowe drewniane
Instalacje wymienione
Rodzaj lokalu jednopoziomowy
Przeznaczenie lokalu usługowy, biurowy
Czynsz najmu netto /m2 51 PLN
Czynsz najmu brutto /m2 63 PLN
Ogrzewanie miejskie
Winda tak
Możliwość parkowania w pobliżu
Własny parking tak
Położenie lokalu ruchliwa ulica
Wejście od ulicy
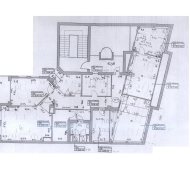
Pomieszczenia
Liczba pomieszczeń biurowych 8
Liczba pomieszczeń socjalnych 1
Liczba pomieszczeń sanitarnych 1
Anna Skwarciak

Anna Skwarciak

Agent
Nr licencji: 16519

Napisz wiadomość 908 Ofert

Opis nieruchomości

Wynagrodzenie pokrywa Właściciel nieruchomości

Kamienica  biurowa usytuowana przy ul. Powstańców Śląskich

Biurowiec Klasy B+

Proponowana powierzchnia 241 m2
Współczynnik części wspólnych -0 %
Dostępność: maja 2026 r.
 
Czynsz najmu powierzchni biurowej – 51,00 PLN/ 1m2/m-c
Opłata service charge – 15,00 -22,00 PLN/ 1m2 /m-c

Prezentowana powierzchnia to lokal o powierzchni 241 m2.
Sekretariat, 3 pokoje, dwa gabinety, salka konferencyjna, 2 toalety, kuchnia


Standard:


- powierzchnia wykończona
- instalacja SAP
- system wentylacji
- klimatyzacja
- instalacja elektryczna z pełnym osprzętem elektroinstalacyjnym 
- ogrzewanie miejskie
- parking


Dostęp do powierzchni 24 h na dobę, 7 dni w tygodniu
 
Anna Skwarciak ASK OFFICE
+48 609 842 932

 Wszelkie podane przez Pośrednika informacje nie są ofertą w rozumieniu Kodeksu Cywilnego

Podobne oferty

Lokal na wynajem

Wrocław, Krzyki

180 m2 59,00 zł/m2

Lokal na wynajem

Wrocław, Krzyki

245 m2 55,00 zł/m2

Lokal na wynajem

Wrocław, Krzyki

350 m2 32,00 zł/m2

Lokal na wynajem

Wrocław, Krzyki

250 m2 43,00 zł/m2

Agent

Proszę wprowadzić poprawne imię i nazwisko
Proszę wprowadzić poprawny numer telefonu
Proszę wprowadzić poprawny adres e-mail
Proszę zaznaczyć wymagane zgody
Rozwiąż równanie:
14 7
Niepoprawny wynik